OBRAS EJECUTADAS

TIPO: Construcción
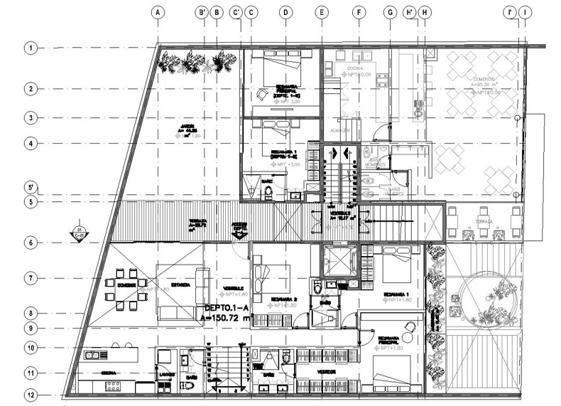
NOMBRE: Remodelación y Reestructura de Inmueble
ZONA: Priv. de Martires de Tacubaya
CLIENTE: Independiente
ESTATUS: Terminada
DESCRIPCIÓN: Remodelación y Reestructura de Inmueble. Proyecto de 12 departamentos


PARA MÁS INFORMACIÓN CONTACTANOS
Me interesa / Solicitar Cita Regresar